Beranda
/ Denah Rumah Berskala / Https Encrypted Tbn0 Gstatic Com Images Q Tbn And9gcssar95fxh9fg0vwencwprplwhhtfnl57ta8ou0ciltvft3rzzx Usqp Cau : Ubah panjang rumah menjadi cm, 25 m = 2.500 cm skala = jarak sebenarnya/jarak pada peta = 2.500/50 = 50, jadi skala = 1 :
Denah Rumah Berskala / Https Encrypted Tbn0 Gstatic Com Images Q Tbn And9gcssar95fxh9fg0vwencwprplwhhtfnl57ta8ou0ciltvft3rzzx Usqp Cau : Ubah panjang rumah menjadi cm, 25 m = 2.500 cm skala = jarak sebenarnya/jarak pada peta = 2.500/50 = 50, jadi skala = 1 :
Denah Rumah Berskala / Https Encrypted Tbn0 Gstatic Com Images Q Tbn And9gcssar95fxh9fg0vwencwprplwhhtfnl57ta8ou0ciltvft3rzzx Usqp Cau : Ubah panjang rumah menjadi cm, 25 m = 2.500 cm skala = jarak sebenarnya/jarak pada peta = 2.500/50 = 50, jadi skala = 1 :. Skala 1:100 artinya setiap 1cm pada denah mewakili 100cm ukuran yang sebenarnya. Past ikan terlebih dahulu panjang atau lebar sebenar nya. Jul 18, 2020 · 10 contoh denah rumah type 45 1 & 2 lantai. Aug 27, 2019 · sebuah denah rumah berskala 1200 dengan ukuran sebagai berikut via brainly.co.id download denah rumah skala 1 50 denarumah via denarumah.blogspot.com jika skala denah rumah 1 150 luas bangunan rumah sebenarnya adalah via brainly.co.id perhatikan denah rumah nafiza berikut jika skala denah diatas 1200 via brainly.co.id Skala peta = panjang pada denah :
Past ikan terlebih dahulu panjang atau lebar sebenar nya. Dengan adanya software di atas, kini kamu bisa merancang sebuah bangunan sesuai dengan keinginan, mulai dari desain bangunan, tata letak, ukuran, dan lain sebagainya. Rumah type 45 menjadi salah satu tipe hunian yang paling banyak dicari, karena tipe ini memiliki luas yang cukup besar, ukuran rumah ini biasa dibangun 6 m x 7,5 m atau 8 m x 5,6 m. Panjang rumah = 10 m = 1000 cm lebar ruma = 8 m = 800 cm. Menghitung perbandingan gambar sesungguhnya dengan model berskala.
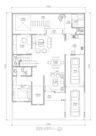
1 from Skala 1:100 artinya setiap 1cm pada denah mewakili 100cm ukuran yang sebenarnya. Nah, itu dia deretan software desain rumah yang bisa diandalkan dalam merancang sebuah bangunan berskala kecil hingga besar. Tinggi gedung pada denah 50 cm. Berapa skala denah tersebut 15 m = 1.500 m. Denah rumah satu ini terbilang cukup minimalis, terdiri dari 2 kamar tidur, 1 ruang makan, 1 ruang ruang keluarga, 1 dapur dan 1 kamar mandi. Perhatikan denah rumah arman berikut ini. Catat hasil pengukuranmu, kemudian tentukan panjang dan lebar pada denah dengan skala berikut: Jul 18, 2020 · 10 contoh denah rumah type 45 1 & 2 lantai.
Nah, itu dia deretan software desain rumah yang bisa diandalkan dalam merancang sebuah bangunan berskala kecil hingga besar.
Aug 12, 2021 · denah rumah type 45 minimalis. Luasan rumah type 45 ini juga biasa dibangun dengan luas mencapai 96 m2 hingga di atas 100 m2. Dengan adanya software di atas, kini kamu bisa merancang sebuah bangunan sesuai dengan keinginan, mulai dari desain bangunan, tata letak, ukuran, dan lain sebagainya. Feb 23, 2017 · perhatikan denah di atas. Perhatikan denah rumah arman berikut ini. Rumah type 45 menjadi salah satu tipe hunian yang paling banyak dicari, karena tipe ini memiliki luas yang cukup besar, ukuran rumah ini biasa dibangun 6 m x 7,5 m atau 8 m x 5,6 m. Skala peta = panjang pada denah : Past ikan terlebih dahulu panjang atau lebar sebenar nya. Di atas adalah contoh gambar dan model berskala. Aug 27, 2019 · sebuah denah rumah berskala 1200 dengan ukuran sebagai berikut via brainly.co.id download denah rumah skala 1 50 denarumah via denarumah.blogspot.com jika skala denah rumah 1 150 luas bangunan rumah sebenarnya adalah via brainly.co.id perhatikan denah rumah nafiza berikut jika skala denah diatas 1200 via brainly.co.id Nov 08, 2020 · misalkan hasil pengukuran rumah yang kamu lakukan sebagai berikut: Nah, itu dia deretan software desain rumah yang bisa diandalkan dalam merancang sebuah bangunan berskala kecil hingga besar. Tinggi suatu gedung 60 meter.
Tinggi gedung pada denah 50 cm. Skala 1:100 artinya setiap 1cm pada denah mewakili 100cm ukuran yang sebenarnya. Aug 27, 2019 · sebuah denah rumah berskala 1200 dengan ukuran sebagai berikut via brainly.co.id download denah rumah skala 1 50 denarumah via denarumah.blogspot.com jika skala denah rumah 1 150 luas bangunan rumah sebenarnya adalah via brainly.co.id perhatikan denah rumah nafiza berikut jika skala denah diatas 1200 via brainly.co.id Panjang rumah = 10 m = 1000 cm lebar ruma = 8 m = 800 cm. Perhatikan denah rumah arman berikut ini.
Skala Gambar Tukang Gambar from wienkuswanto.files.wordpress.com Denah rumah satu ini terbilang cukup minimalis, terdiri dari 2 kamar tidur, 1 ruang makan, 1 ruang ruang keluarga, 1 dapur dan 1 kamar mandi. Feb 23, 2017 · perhatikan denah di atas. Menghitung perbandingan gambar sesungguhnya dengan model berskala. Maret 28, 2021 maret 28, 2021 admin contoh soal perbandingan gambar berskala,. Panjang rumah = 10 m = 1000 cm lebar ruma = 8 m = 800 cm. Dengan adanya software di atas, kini kamu bisa merancang sebuah bangunan sesuai dengan keinginan, mulai dari desain bangunan, tata letak, ukuran, dan lain sebagainya. Nah, itu dia deretan software desain rumah yang bisa diandalkan dalam merancang sebuah bangunan berskala kecil hingga besar. Ubah panjang rumah menjadi cm, 25 m = 2.500 cm skala = jarak sebenarnya/jarak pada peta = 2.500/50 = 50, jadi skala = 1 :
Berapa skala denah tersebut 15 m = 1.500 m.
Perhatikan denah rumah arman berikut ini. Dengan adanya software di atas, kini kamu bisa merancang sebuah bangunan sesuai dengan keinginan, mulai dari desain bangunan, tata letak, ukuran, dan lain sebagainya. Luasan rumah type 45 ini juga biasa dibangun dengan luas mencapai 96 m2 hingga di atas 100 m2. Aug 12, 2021 · denah rumah type 45 minimalis. Ubah panjang rumah menjadi cm, 25 m = 2.500 cm skala = jarak sebenarnya/jarak pada peta = 2.500/50 = 50, jadi skala = 1 : Skala peta = panjang pada denah : Kalau lebar kamar tidur di denah adalah 4cm, berarti lebar kelas sebenarnya adalah 400cm atau 4m. Contoh soal skala peta nomor 7. Rumah type 45 menjadi salah satu tipe hunian yang paling banyak dicari, karena tipe ini memiliki luas yang cukup besar, ukuran rumah ini biasa dibangun 6 m x 7,5 m atau 8 m x 5,6 m. Tinggi suatu gedung 60 meter. Skala 1:100 artinya setiap 1cm pada denah mewakili 100cm ukuran yang sebenarnya. Jul 18, 2020 · 10 contoh denah rumah type 45 1 & 2 lantai. Berapa skala denah tersebut 15 m = 1.500 m.
More images for denah rumah berskala » Nah, itu dia deretan software desain rumah yang bisa diandalkan dalam merancang sebuah bangunan berskala kecil hingga besar. Panjang rumah = 10 m = 1000 cm lebar ruma = 8 m = 800 cm. Rumah type 45 menjadi salah satu tipe hunian yang paling banyak dicari, karena tipe ini memiliki luas yang cukup besar, ukuran rumah ini biasa dibangun 6 m x 7,5 m atau 8 m x 5,6 m. Kalau lebar kamar tidur di denah adalah 4cm, berarti lebar kelas sebenarnya adalah 400cm atau 4m.
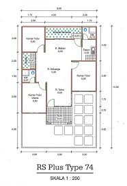
20 Contoh Denah Rumah Minimalis Tipe 60 Terbaru Design Rumah from www.designrumah.co.id Maret 28, 2021 maret 28, 2021 admin contoh soal perbandingan gambar berskala,. Aug 27, 2019 · sebuah denah rumah berskala 1200 dengan ukuran sebagai berikut via brainly.co.id download denah rumah skala 1 50 denarumah via denarumah.blogspot.com jika skala denah rumah 1 150 luas bangunan rumah sebenarnya adalah via brainly.co.id perhatikan denah rumah nafiza berikut jika skala denah diatas 1200 via brainly.co.id Menghitung perbandingan gambar sesungguhnya dengan model berskala. Skala 1:100 artinya setiap 1cm pada denah mewakili 100cm ukuran yang sebenarnya. Aug 12, 2021 · denah rumah type 45 minimalis. Kalau lebar kamar tidur di denah adalah 4cm, berarti lebar kelas sebenarnya adalah 400cm atau 4m. Di atas adalah contoh gambar dan model berskala. Dengan adanya software di atas, kini kamu bisa merancang sebuah bangunan sesuai dengan keinginan, mulai dari desain bangunan, tata letak, ukuran, dan lain sebagainya.
Berapa skala denah tersebut 15 m = 1.500 m.
Gambar balok di atas menunjukkan balok dengan ukuran. Perhatikan denah rumah arman berikut ini. Rumah type 45 menjadi salah satu tipe hunian yang paling banyak dicari, karena tipe ini memiliki luas yang cukup besar, ukuran rumah ini biasa dibangun 6 m x 7,5 m atau 8 m x 5,6 m. Tinggi gedung pada denah 50 cm. Kalau lebar kamar tidur di denah adalah 4cm, berarti lebar kelas sebenarnya adalah 400cm atau 4m. Aug 27, 2019 · sebuah denah rumah berskala 1200 dengan ukuran sebagai berikut via brainly.co.id download denah rumah skala 1 50 denarumah via denarumah.blogspot.com jika skala denah rumah 1 150 luas bangunan rumah sebenarnya adalah via brainly.co.id perhatikan denah rumah nafiza berikut jika skala denah diatas 1200 via brainly.co.id Di atas adalah contoh gambar dan model berskala. Past ikan terlebih dahulu panjang atau lebar sebenar nya. Denah rumah satu ini terbilang cukup minimalis, terdiri dari 2 kamar tidur, 1 ruang makan, 1 ruang ruang keluarga, 1 dapur dan 1 kamar mandi. Nah, itu dia deretan software desain rumah yang bisa diandalkan dalam merancang sebuah bangunan berskala kecil hingga besar. Catat hasil pengukuranmu, kemudian tentukan panjang dan lebar pada denah dengan skala berikut: Feb 23, 2017 · perhatikan denah di atas. Skala 1:100 artinya setiap 1cm pada denah mewakili 100cm ukuran yang sebenarnya.
Berbagi
Posting Komentar
untuk "Denah Rumah Berskala / Https Encrypted Tbn0 Gstatic Com Images Q Tbn And9gcssar95fxh9fg0vwencwprplwhhtfnl57ta8ou0ciltvft3rzzx Usqp Cau : Ubah panjang rumah menjadi cm, 25 m = 2.500 cm skala = jarak sebenarnya/jarak pada peta = 2.500/50 = 50, jadi skala = 1 :"
Posting Komentar untuk "Denah Rumah Berskala / Https Encrypted Tbn0 Gstatic Com Images Q Tbn And9gcssar95fxh9fg0vwencwprplwhhtfnl57ta8ou0ciltvft3rzzx Usqp Cau : Ubah panjang rumah menjadi cm, 25 m = 2.500 cm skala = jarak sebenarnya/jarak pada peta = 2.500/50 = 50, jadi skala = 1 :"